
Планировки удобны и практичны: все помещения сгруппированы вокруг холлов. На первом этаже кухня-гостиная со столовой зоной, изолированная комната, санузел, гардеробная и техническое помещение. На втором — 3 спальни, гардеробная и 1–2 санузла, в зависимости от проекта.
Особенности серии: увеличенный тёплый тамбур и дополнительные помещения — гардеробные и котельная.
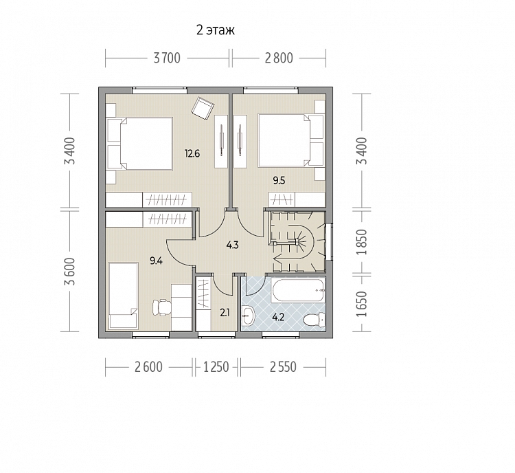
- 89.9 кв.м
- 2 этажа
- 5 комнат
- 2 санузла
- 1 гардеробная
Планировки
В планировку можно внести любые изменения и дополнения
Комплектации и стоимость
Выберите технологию строительства
Тёплый дом для круглогодичного использования. Бюджетный вариант комплектации "Жилой дом".
Тёплый дом для круглогодичного использования. Бюджетный вариант комплектации "Жилой дом".
Свайный фундамент и каркас стен 150 мм, крепко сшитый снаружи плитами ОСП-9, делают дом прочным и долговечным.
Утепление пола, потолка под кровлей 200 мм + энергофлекс, а также окна с двойным стеклопакетом (3 стекла) позволяют создать комфортную температуру в любое время года.
Отделка стен – снаружи сайдинг, внутри вагонка 12,5 мм.
Кровля – оцинкованный профнастил.
В доме есть всё необходимое для круглогодичного проживания.
Фундамент:свайный 2,5 м с ростверком из профилированной трубы 80х80 мм (ниже глубины промерзания)
Стены:каркас — 150 мм, отделка внутри вагонкой 12,5 мм, наружная отделка сайдингом
Кровля:металлочерепица «Каскад», цвет красный
Полы:утепление — 200 мм, доска пола — 35 мм по пароизоляции; обработка биозащитой нижнего конструктива
Стены:утепление — 150 мм, отделка внутри вагонкой 12,5 мм, снаружи — сайдингом
Перегородки:каркас — 100 мм, отделка вагонкой 12,5 мм
Потолок:утепление — 50 мм, отделка вагонкой 12,5 мм.
Полы:доска пола — 21 мм по пароизоляции
Стены:утепление — 150 мм, отделка внутри вагонкой 12,5 мм, снаружи — сайдингом
Перегородки:каркас — 100 мм, отделка вагонкой 12,5 мм
Потолок:утепление — 200 мм, отделка вагонкой 12,5 мм
Высота потолков:первый этаж — 2,5 м; второй этаж — 2,5 м
Окна:пластиковые, с двойным стеклопакетом (3 стекла)
Двери:деревянные филенчатые
Вентиляция:проветривание
Лестница:двухмаршевая, поворотная с забежными ступенями
Гидроизоляция:гидроизоляция санузла есть
Вы можете заказать кухню с мебелью и укомплектовать санузлы
-
Металлочерепица
при заказе до 22.10
Тёплый, красивый и очень комфортный дом для постоянного проживания.
Тёплый, красивый и очень комфортный дом для постоянного проживания.
Свайный фундамент и усиленный каркас стен 200 мм, крепко сшитый снаружи плитами ОСП-9, делают дом прочным и долговечным.
Утепление пола, стен и потолка под кровлей 200 мм, окна с двойным стеклопакетом (3 стекла) позволяют создать комфортную температуру в любые морозы с минимальным расходом энергии.
Отделка стен сайдингом, кровля из металлочерепицы и отделка цоколя придадут дому привлекательный внешний вид.
Наличие системы вентиляции кухни и санузлов, а также звукоизоляция перегородок делают проживание в доме комфортным и удобным.
Фундамент:свайный 2,5 м с ростверком из трубы профилированной 80х120 мм (ниже глубины промерзания). Цоколь обшит ОСП
Стены:каркас — 45х200 мм; отделка внутри вагонкой 12,5 мм, наружная отделка сайдингом по ОСП-9
Кровля:металлочерепица «Каскад», цвет красный
Полы:утепление — 200 мм, доска пола — 35 мм по пароизоляции; обработка биозащитой нижнего конструктива
Стены:отделка внутри вагонкой 12,5 мм, снаружи — сайдингом. Утепление 200 мм плитным утеплителем
Перегородки:каркас — 35х150 мм и 35х70 мм, отделка вагонкой 12,5 мм. Утепление 100 мм плитным утеплителем
Потолок:утепление — 100 мм, отделка вагонкой 12,5 мм.
Полы:доска пола — 35 мм по пароизоляции
Стены:отделка внутри вагонкой 12,5 мм, снаружи — сайдингом. Утепление 200 мм плитным утеплителем
Перегородки:каркас — 35х150 мм и п/м 35х70 мм, отделка вагонкой 12,5 мм. Утепление 100 мм плитным утеплителем
Потолок:утепление — 250 мм, отделка вагонкой 12,5 мм
Высота потолков:первый этаж — 2,5 м; второй этаж — 2,5 м
Окна:пластиковые, с двойным стеклопакетом (3 стекла)
Двери:деревянные филенчатые
Вентиляция:вентиляция кухни и санузлов естественная, с подготовкой под установку котла отопления; выводится на кровлю при помощи «грибков»
Лестница:двухмаршевая, поворотная с забежными ступенями
Гидроизоляция:гидроизоляция санузла есть
Вы можете заказать кухню с мебелью и укомплектовать санузлы
-
Металлическая входная дверь вместо филенчатой
при заказе до 22.10
Семейная ипотека 4%
Дополненная комплектация «Жилой дом» и 100% готовность всех инженерных систем: необходимое освещение и достаточное количество розеток, скважина для автономного водоснабжения, септик, отопление, кухонный гарнитур, сантехника. Все подключено и работает.
Дополненная комплектация «Жилой дом» и 100% готовность всех инженерных систем: необходимое освещение и достаточное количество розеток, скважина для автономного водоснабжения, септик, отопление, кухонный гарнитур, сантехника. Все подключено и работает.
Дом для постоянного проживания – Заходи и живи!
Фундамент: железобетонный свайно-забивной 150х150х3000 мм (ниже глубины промерзания) с ростверком из трубы профилированной 80х120 мм. Цоколь обшит ОСП 9 мм.
Наружная отделка: сайдинг «Технониколь», цвет «Эдельвейс» (серый), по ОСП 9 мм
Кровля: металлочерепица красного цвета – 0,5 мм
Пол 1 этажа: 200 мм
Наружные стены: 200 мм, шаг каркасных стоек – 400 мм
Потолок 2 этажа: 250 мм
Звукоизоляция: 100 мм
Перекрытие: 100 мм
Полы: доска пола 35 мм
Стены: вагонка 12,5 мм
Отделка санузла (1 этаж): влагостойкий виниловый ламинат, стены и потолок - пластиковые панели
Отделка остальных санузлов (при наличии в проекте): гидроизоляция пола; стены и потолок – влагостойкая ОСП
Потолки: вагонка 12,5 мм
Окна: двойной стеклопакет (3 стекла)
Лестница: поворотная, с ограждением и перилами
Вентиляция: кухни, санузлов и тех.помещения (при наличии в проекте), подготовка под установку котла отопления, обустроенные каналы с выводом «грибков» на крышу.
Двери: межкомнатные – филёнчатые; Входная – металлическая с терморазрывом.
- тумба и раковина
- душевая кабина 900 мм х 900 мм
- зеркало 500 мм (пенал приобретается отдельно)
- унитаз
Электрика: распределительный щит на 220 вольт с автоматикой, розетки в каждом помещении, контур повторного заземления. Установка открытым способом
Водоснабжение одного санузла и кухни: разводка труб горячей и холодной воды для подключения санузла и кухни открытым способом, водонагреватель 100 л, вывод для подключения питьевого фильтра, выводы для подключения стиральной, сушильной и посудомоечной машин
Отопление: организация выделенной линии под конвекторы и установка конвекторов в каждом помещении
Скважина и устройство водоподъёма
Септик: до 4 человек
Пакет инженерных коммуникаций
включен в стоимость
Семейная ипотека 4%

Кредитование в «Теремъ-финанс» – это экономия сил и времени. Специалисты «Теремъ-финанс» проконсультируют и помогут оформить документы.
- Персональный менеджер и бесплатное сопровождение
- Бесплатное сопровождение клиента
без предоплаты
Мы работаем без предоплаты. Вы платите только по завершении очередного этапа строительства.

Белые матовые фасады с классической фрезеровкой гармонично сочетаются с деревянной отделкой и придают интерьеру современный облик. Гарнитур может быть прямым или Г-образным в зависимости от планировки помещения.

Санузел оснащён всем необходимым: душевой кабиной, унитазом, тумбой с раковиной и зеркалом.






